- Exterior
- Lobby
- 3rd Floor
- 4th Floor
- 5th Floor
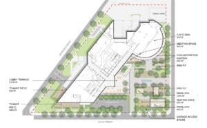
- 8th & 9th Floor
- 11th Floor
- 12th Floor
- Parking Garage
- Create Location Storyboard
- Location Storyboard
-
Studio Plaza
Studio Plaza is the iconic 456,204-square-foot, 12-story office campus grounded in the vibrant culture of Burbank’s Media District. Following a comprehensive, multimillion-dollar renovation, Studio Plaza has been transformed into a contemporary workplace destination, offering nearly half a million square feet of office space and amenities. The campus features a thoughtfully redesigned lobby, multiple outdoor pavilions, landscaped terraces, and collaborative office spaces available for filming, as well as underground parking spaces for cast and crew.
Positioned just off the Ventura Freeway, Studio Plaza stands as a distinguished landmark, directly adjacent to the renowned Warner Bros. Studios lot and mere minutes from Disney and NBC/Universal Studios.
Please Contact Us for More Information or to Schedule a Scout
